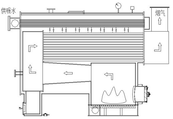
The vacuum phase change hot water unit uses the principle of phase change to form a negative pressure environment inside the enclosed furnace body. The heat medium water is filled in the body, and the heat medium water is heated by combustion or other methods, and then the heat medium water is evaporated and condensed. To the heat exchanger, the heat exchanger heats the water to be heated. Utilizing the advantage of low boiling point of water under negative pressure to enhance heat transfer, the heat transfer efficiency is much higher than that of ordinary boilers. The unit is a non-pressure-bearing equipment, operating in a phase change state, eliminating the need for complicated approval procedures, no annual review, no boiler room design, no installation team, no boiler certificate, and low installation and operation costs.
According to different combustion heat sources, this product is divided into two series: biomass phase change boiler hot water unit and natural gas vacuum phase change boiler.
Biomass vacuum phase change boiler hot water unit
Shandong Lucy New Energy Technology Co., Ltd. has developed biomass heating technology after 7 years of research and development and promotion. Lucy patented technology vacuum structure biomass burner and vacuum phase change hot water unit, etc., truly realize the clean combustion of biomass, high-efficiency heat exchange and recycling, and the thermal efficiency is ≥94%.

| Model | BVB-60 | BVB-120 | BVB-240 | BVB-360 | BVB-480 | BVB-600 | ||
| Continuous output 104Cal/h | 60 | 120 | 240 | 360 | 480 | 600 | ||
| Heating hot water | Inlet and outlet temperature ℃ | 55/70 | ||||||
| Design flow m³/h | 40 | 80 | 160 | 240 | 320 | 400 | ||
| Pressure loss MPa | 0.08 | 0.08 | 0.08 | 0.08 | 0.08 | 0.08 | ||
| Take over caliber mm | DN80 | DN150 | DN175 | DN250 | DN250 | DN300 | ||
| Sanitary hot water | Inlet and outlet temperature ℃ | 20/65 | ||||||
| Design flow m³/h | 10 | 20 | 30 | 80 | 106 | 145 | ||
| Pressure loss MPa | 0.08 | |||||||
| Take over caliber mm | DN50 | DN80 | DN100 | DN125 | DN150 | DN200 | ||
| use pressure MPa | 0.8(customizable) | |||||||
| Biomass consumption | Consumption kg/h | 159.6 | 319.2 | 638 | 957.6 | 1215 | 1596 | |
| Exhaust caliber mm | 300×300 | 500×400 | 500×400 | 600×400 | 700×500 | 800×500 | ||
| Electrical power kW | 4.5 | 8.5 | 14.5 | 18.5 | 20.5 | 20.5 | ||
| Dimensions | length mm | 1870 | 4075 | 6500 | 7581 | 8910 | 11000 | |
| width mm | 988 | 2725 | 3500 | 3500 | 3500 | 3500 | ||
| height mm | 2000 | 1798 | 4000 | 4300 | 4500 | 4500 | ||
| Shipping weight kg | 2500 | 8000 | 9100 | 14800 | 25000 | 27000 | ||

The biomass phase change boiler unit uses the phase change theory for heat exchange. The heat released by the fuel combustion is absorbed by the heat medium water. When the temperature rises to the saturation temperature in a vacuum state, it evaporates into saturated steam, Complete the phase change process. The condensed water flows into the evaporation chamber to continue to absorb heat, completing the phase change cycle.
Uniqueness of Lucy Biomass Vacuum Phase Change Boiler Unit:
Lucy biomass phase change boiler unit product truly applies the phase change technology to the heating field, greatly improving the thermal efficiency of the unit, and using the rotary combustion method, the fuel is burned separately, and the combustion temperature in the furnace is reduced. Which obviously alleviates the problems that traditional biomass boilers are difficult to solve, such as slagging in the furnace and ash contaminated the heated area.
The specific advantages are as follows:
1、Energy saving: The integrated design of the burner and the biomass phase change boiler, hot water unit adopts phase change technology. The unit operates in a phase change state, has a low evaporate point, and exchanges the latent heat of vaporization (condensation latent heat) effectively, Improved thermal efficiency. There are no traditional thermal insulation materials such as refractory bricks and refractory cement in the burner. It directly participates in phase change heat and has good heat exchange performance. The overall two-pass design and the installation of waste heat recovery devices in the exhaust gas improve energy utilization. .
2、Rotary grate design, the fuel is distributed around the grate and burns, which increases the distribution area of the fuel, it has low temperature zone of the phase conversion heat, which significantly reduces the combustion temperature and reduces the slagging in the furnace and the ash deposit on the heating surface, which make the boiler runs more stable.
3、Low-temperature combustion greatly reduces the emission of NOX.
4、The unit operates under negative pressure, and the unit phase-change boiler operates reliably. The heat medium is in the phase-change boiler, and there is no danger of expansion or explosion. A constant amount of heat medium water is stored in the furnace body, so there is no danger of dry burning. Multiple automatic protection devices are unmatched by other units.
5、Elimination of complicated approval procedures: The unit is operating under vacuum, eliminating the need for pressure vessel approval, no annual review, and no certificate required for operators.
6、Intelligent control: touch screen display, virtual buttons, graphic display system working conditions, fault self-diagnosis, multiple fault alarm system.
7、The biomass heating system truly realizes the clean burning of biomass, and the emission meets the national ultra-low emission requirements. It adopts a special low-nitrogen combustion method. The nitrogen oxide content in the combustion exhaust gas is less than 200mg/m³, and there is less slagging.
8、The biomass phase change boiler heating system designed by the company is based on the Lucy patented technology, vacuum structure biomass burner and vacuum phase change hot water unit as the core, and also includes shock wave soot blowing, bag filter, denitrification equipment, induced draft fan, Supporting equipment such as flue gas waste heat recovery equipment.